¿Quienes somos?
Nuestras Viviendas
Créditos Hipotecarios
Proyecto Realidad
Contacto
es
Español
¿Quienes somos?
Nuestras Viviendas
Créditos Hipotecarios
Proyecto Realidad
Contacto
es
Español
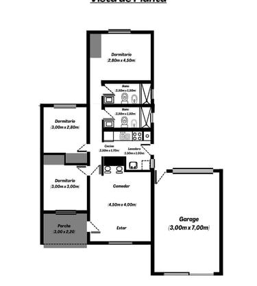
Vivienda Tipo 4
103m2
3 Dormitorios
Vista de Planta
1 Cocina
1 Lavadero
1 Baño
1 Estar-Comedor
1 Porche
USD 50.470,00
EUR 43.474,61
1 Garage
ARS 71.919.750,00
2024 - Cooperativa de Vivienda, Crédito y Consumo "ODAP" ltda.